통신 랙케이스 및 판금사업 전문업체 지우테크
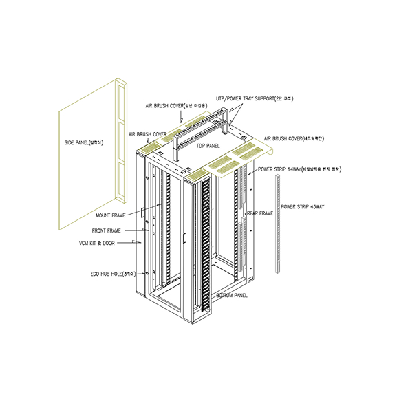
STEEL FRAME 기본 골조 구조를 기반으로, 폭과 깊이 등 규격을 자유롭게 조절할 수 있는 고정밀 네트워크 랙입니다.
우수한 내구성과 합리적인 가격을 동시에 갖춘 본 제품은 데이터 센터용 서버 랙은 물론, 전산실의 고품질 네트워크 랙으로도 손색이 없습니다.
사용자의 요구에 따라 높이, 폭, 깊이 등을 자유롭게 설정할 수 있으며, 기존 다이캐스팅 랙 대비 더 유연한 설계와 원하는 색상으로의 맞춤 제작이 가능합니다.


| 맞춤형 규격 대응 | 기존 다이캐스팅 랙 대비 높이, 폭, 깊이 등을 자유롭게 변경 가능 고객 요청에 따라 원하는 색상 커스터마이징 지원 |
|---|---|
| 표준 호환성 |
국제 표준 : EIA-310D / IEC 60297 / DIN 41494 제품 규격 : 51U × W900 × D1200 |
| 재질 |
고강도 STEEL , PC재질 다이캐스팅 네트워크 케이블 보호를 위한 상부 오픈 구조 |
| 구조 및 호환성 |
|
| 전력 구성 (Power Unit 옵션) |
|


